Strongback pullers, alternatively referred to as hydraulic pullers, serve a vital function in efficiently removing shaft-fitted components like bearings or couplings. By harnessing controlled hydraulic force, they excel in swiftly separating parts, surpassing manual techniques. While an array of off-the-shelf strongback puller design models is accessible, there are instances where bespoke designs become imperative. This is particularly true in situations where confined spaces or elevated capacity demands surpass the offerings in the commercial market. Therefore, a custom-designed strongback puller may be indispensable.
In a specific instance, a client faced the challenge of extracting a fan coupling from a shaft during a scheduled shutdown. Their preference was to employ a hydraulic jacking cylinder readily available in the market with a strongback puller design. The client presented a strongback puller design concept, which we subsequently translated into a 3D model. Through the application of FEA analysis and the production of comprehensive fabrication drawings, we engineered a customized and highly efficient solution tailored to their exact requirements. For further insights into our design certification process, you can visit: https://www.dynamicengineering.com.au/industrial/2014/04/18/design-certification/

We used the 3d model to perform a stress analysis and create fabrication drawings. For more information on FEA visit https://blog.spatial.com/finite-element-modeling

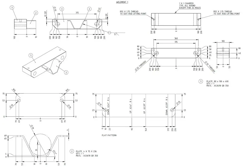
We then used the model to create the fabrication drawings for the strongback puller.

Working with us for your custom tools
When you join forces with Dynamic Engineering Consultants, our dedicated team of skilled experts focuses on delivering excellent results. We possess the knowledge and technology to provide creative and efficient solutions tailored to your needs. We prioritize your requirements and offer personalized services that aim to exceed your expectations.
Our track record showcases our consistent ability to deliver outstanding outcomes for clients as is shown, for example, in the strongback puller design described above. We value your time and understand the importance of meeting deadlines whilst upholding quality. Our cost-effective approach maximizes resources, giving you great value for your investment.
Collaboration lies at the heart of our philosophy as we believe in building strong partnerships with clients. We encourage open communication and welcome your input to achieve your project’s goals. Moreover, our commitment doesn’t end when the project is finished. We provide ongoing support, ensuring you have the resources you need even after completion.
Choosing to work with us unlocks your project’s true potential. Let’s embark on this journey together and bring your ideas to life. Contact us today to discuss your project and discover how we can assist you.
